Designed with a focus on both style and practicality, this modern ADU blends clean, minimal design with everyday comfort. Its sleek architecture and thoughtful details create a space that feels both welcoming and functional.
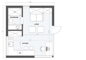
This studio offers more than just a place to live – it’s built for your lifestyle. With high-quality kitchen cabinets, modern lighting, and an efficient HVAC system, every detail is made to support comfort and ease. The open layout and large windows bring in plenty of natural light and connect the indoors to the green surroundings outside.
At the core of this project is our commitment to your needs. Whether it’s customizing the finishes, adjusting the layout, or adding your personal touch, we work closely with you to create a space that truly feels like home.
This ADU is perfect for guests, a creative workspace, or a private retreat. Its simple lines and carefully chosen materials offer a clean look, while smart features support energy efficiency and long-term comfort.





