This modern ADU combines clean lines, bold material contrasts, and a low, horizontal profile to create a space that feels both stylish and practical. Whether your taste leans toward industrial, minimalist, or warm natural finishes, this design adapts to your personal style while fitting naturally into its surroundings.
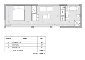
Inside, the layout is flexible and inviting. The bedroom offers a calm, quiet retreat with floor-to-ceiling windows that frame peaceful outdoor views. The living area flows easily between relaxation, work, and entertainment, while the kitchen features modern cabinetry, energy-efficient lighting, and an integrated HVAC system for year-round comfort.
Every element has been designed with your lifestyle in mind—from the smart layout to the quality materials. Whether used as a guesthouse, home office, or personal escape, this ADU adjusts to your needs and reflects your unique way of living.
It’s more than a small home—it’s a space where good design meets real-life comfort.





